Objektart
Adresse
Objektdaten
Informationen
Ausstattung
Details
In begehrter Wohnlage von Bergisch Gladbach-Bensberg entsteht dieses architektonisch klare Ein-
familienhaus im modernen Bauhausstil. Das freistehende Neubauhaus überzeugt mit zwei Vollge-
schossen, rund 200 m² Wohnfläche und einem ideal durchdachten Grundriss für anspruchsvolle Fa-
milien.
Herzstück des Hauses ist der großzügige, offen gestaltete Wohn-/Ess-/Kochbereich mit weitläufigen
Fensterflächen und direktem Blick ins Grün. Die klare Linienführung, das Flachdach und die moderne
Fassadengestaltung unterstreichen den zeitlosen Charakter der Immobilie.
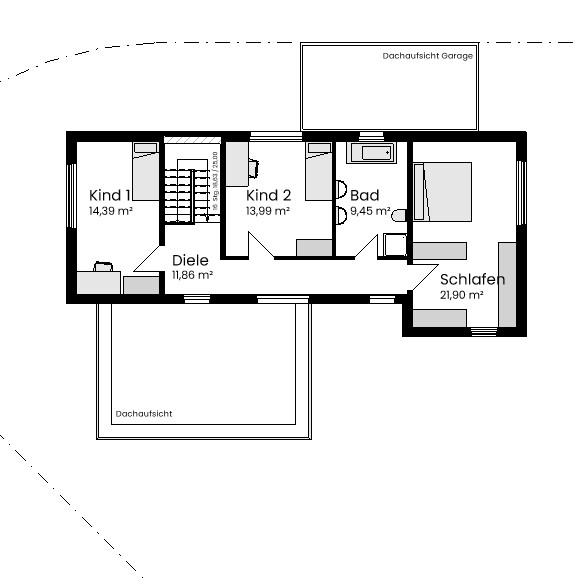
Im Erdgeschoss befinden sich neben dem repräsentativen Eingangsbereich ein Büro, ein Gästezim-
mer sowie ein Gäste-WC - ideal für Homeoffice, Besuch oder flexible Nutzung.
Das Obergeschoss bietet zwei komfortable Kinderzimmer, ein modernes Badezimmer sowie ein
großzügiges Elternschlafzimmer mit Ankleide. Sowohl vom Wohnbereich als auch vom Schlafzimmer
genießen Sie einen unverbaubaren Blick in den angrenzenden Wald.
Das 544 m² große Grundstück grenzt direkt an ein unverbaubares Naturschutzgebiet - ein echtes
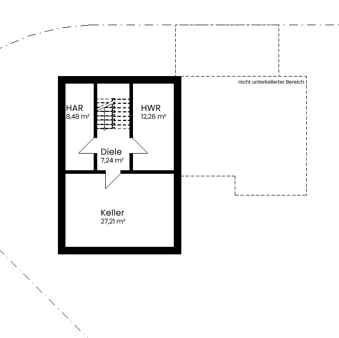
Alleinstellungsmerkmal mit dauerhaft gesicherter Privatsphäre. Eine Einzelgarage sowie eine Teilun-
terkellerung mit Hauswirtschafts-, Abstell- und Technikflächen runden das Raumangebot funktional
ab.
Diese Immobilie vereint moderne Architektur, hohe Wohnqualität und eine außergewöhnliche Mikro-
lage - eine seltene Gelegenheit im gehobenen Segment von Bensberg.
Dieses Einfamilienhaus überzeugt durch eine Ausstattung, die Komfort und Qualität auf höchstem
Niveau vereint. Schon beim Betreten spürt man die Liebe zum Detail und den Anspruch an moderne
Wohnkultur. Der großzügige Wohn- und Essbereich öffnet sich mit bodentiefen Fenstern zur Terrasse
und schafft ein lichtdurchflutetes, offenes Raumgefühl. Eine stilvolle Designküche fügt sich harmo-
nisch in das Gesamtkonzept ein und wird schnell zum Herzstück des Familienlebens.
Hochwertige Bodenbeläge, eine angenehme Fußbodenheizung und eine moderne Sanitärausstat-
tung in den Bädern unterstreichen den hohen Wohnstandard. Smarte Haustechnik sorgt für Effizienz
und Wohnkomfort, während durchdachte Stauraumlösungen und ein funktionaler Hauswirtschafts-
raum den Alltag erleichtern.
Im Obergeschoss laden die hellen Schlafzimmer und die offene Galerie zum Entspannen ein - hier
verbinden sich Stil, Ruhe und Geborgenheit. Die Terrasse sowie der private Garten schaffen zusätzli-
che Lebensqualität im Freien. Abgerundet wird das Angebot durch eine in die Architektur integrierte
Garage: Dieses Zuhause bietet alles, was Familien mit gehobenem Anspruch sich wünschen - von
durchdachter Planung bis zu hochwertigen Materialien in jedem Detail.
o Individueller Architektenentwurf
o Massivbauweise in Poroton Stein
o Nichttragende Innenwände in Vollgips - Mauerwerk
o Flachdach betoniert
o 25cm Bodenplatte in WU-Beton
o Kellerwände in WU-Beton
o Stahlbeton Garage mit elektrischem Sektionaltor
o Fassade mit Materialmix
o Fenster 3 Fach Verglast Firma SCHÜCO
o Elektrische Rollladen
o Haustür in Aluminium Firma SCHÜCO
o Luft- Wasser- Wärmepumpe von Vaillant mit Fußbodenheizung
o Schalter und Stecker Firma GIRA
o Sanitärobjekte Firma Geberit
o Armaturen Firma Grohe
o Parkett / Vinyl und Fliesenbeläge nach Wahl
o Vollholz Sockelleisten lackiert
o Weißlack Innentüren
o Inkl. Baustelleneinrichtung, Erdarbeiten & Pflasterarbeiten
Das Objekt befindet sich in einer der gefragtesten Wohnlagen von Bergisch Gladbach im Stadtteil
Bensberg.
Bensberg steht seit jeher für eine gewachsene, hochwertige Wohnstruktur, anspruchsvolle Nachbar-
schaft und eine ausgezeichnete Infrastruktur. Einkaufsmöglichkeiten, Schulen, Kindergärten, Ärzte so-
wie eine sehr gute Anbindung in Richtung Köln sind in wenigen Minuten erreichbar.
Das besondere Highlight ist jedoch die direkte Waldrandlage: Das Grundstück grenzt unmittelbar an
ein geschütztes, unverbaubares Naturareal. Diese Konstellation garantiert nicht nur Ruhe und Erho-
lung, sondern auch langfristig gesicherte Freisicht ohne spätere Nachverdichtung.
Hier wohnen Sie naturnah und dennoch urban angebunden - eine Kombination, die in dieser Quali-
tät nur selten zu finden ist
Ansprechpartner
Mobil: 00491749799018
dk@franksiegmannimmobilien.de
Ich bin damit einverstanden, dass mir Karten von Google angezeigt werden. Es gelten die Datenschutzbedingungen von Google (https://policies.google.com/privacy).
Ich bin einverstanden