Objektart
Adresse
Objektdaten
Informationen
Details
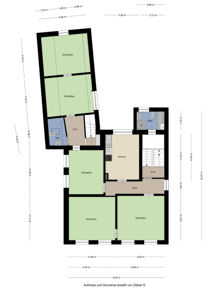
Dieses Mehrfamilienhaus aus dem Baujahr 1902 bietet eine solide Basis für alle, die Substanz erkennen und ein Objekt konsequent neu aufstellen möchten. Auf rund 297 m² Wohnfläche verteilen sich 13 Zimmer - ideal, um mehrere Wohneinheiten zu entwickeln oder flexible Grundrisslösungen für unterschiedliche Wohnkonzepte zu realisieren.
Der erste Eindruck: klassische Architektur mit Charakter und einer Fassade, die den Charme der Jahrhundertwende erkennen lässt. Im Inneren zeigt sich der sanierungsbedürftige Zustand - zugleich aber auch das Potenzial, Räume zeitgemäß zu modernisieren und den Bestand wertsteigernd aufzubereiten. Vorhanden sind unter anderem geflieste Bäder mit Dusche sowie Wohn- und Schlafräume mit einfachen, pflegeleichten Bodenbelägen. Die Küche ist funktional angelegt und bietet eine gute Ausgangslage für eine Erneuerung nach aktuellem Standard.
Ein echtes Plus ist das großzügige Grundstück mit 1.407 m²: Der befestigte Hofbereich schafft praktische Rangier- und Stellflächen, ergänzt durch eine Garage, die sich als geschützter Stellplatz oder als Lagerfläche nutzen lässt. Der Gartenbereich eröffnet zusätzliche Reserven - ob als grüne Rückzugsfläche, für eine klare Trennung von Nutz- und Aufenthaltszonen oder als Spielraum für neue Ideen im Rahmen der Sanierung.
Solingen zählt ca. 165.000 Einwohner und bietet damit ein attraktives Umfeld für nachhaltige Wohnkonzepte. Dieses Haus ist eine spannende Gelegenheit für Käuferinnen und Käufer, die ein Projekt mit Perspektive suchen und den Wert eines großzügigen Bestandsobjekts zu schätzen wissen.
- Mehrfamilienhaus Baujahr 1902 mit ca 297 m² Wohnfläche
- Insgesamt 13 Zimmer
- Sanierungsbedürftiger Gesamtzustand
- Massives Hauptgebäude mit verklinkerten Fassadenbereichen und dekorativen Fassadenelementen zur Straßenseite
- Satteldach mit Dachflächenfenster
- Teilweise Rollläden an den Fenstern
- Hauseingang mit überdachtem Windfang und Holz Haustür
- Bodenbeläge überwiegend Laminat in Wohn und Schlafräumen
- Bodenbeläge Fliesen in den Bädern
- Wand und Bodenfliesen im Bad
- Bad mit Dusche und WC
- Bad mit Waschtisch und Spiegel
- Heizkörper in den Räumen sichtbar
- Decken teils mit Holzpaneelen
- Innenausbau mit Holztüren und Holzzargen
- Küchenbereiche mit Fliesenspiegel und vorhandenen Küchenmöbeln
- Grundstück 1407 m²
- Gartenfläche mit gewachsenem Baumbestand
- Hof und Zufahrtsbereich mit Schotterbelag
- Garage und zusätzliche Stellplatzmöglichkeiten auf dem Hof
Die Immobilie liegt in einem gewachsenen Solinger Umfeld mit sehr guter Alltagsversorgung und kurzen Wegen. Für einen reibungslosen Arbeitsalltag ist die Lage besonders praktisch, weil Sie schnell auf die Hauptachsen kommen und gleichzeitig viele Besorgungen ohne Umwege erledigen können.
Anbindung und Erreichbarkeit
In der direkten Umgebung gibt es mehrere Bushaltestellen, unter anderem an der Haltestelle Industriemuseum in ca. 0,2 km. Damit ist der ÖPNV für Mitarbeitende und Mieter unkompliziert nutzbar. Der nächste Bahnanschluss ist in ca. 2 bis 3 km erreichbar, darunter Solingen Hauptbahnhof. Mit dem Auto sind Sie zügig auf der Autobahn, die nächste Auffahrt liegt in ca. 4 km Entfernung. Für überregionale Termine sind die Flughäfen Düsseldorf und Köln Bonn jeweils in etwa 40 bis 60 km erreichbar.
Versorgung und kurze Wege
Für die tägliche Versorgung liegen Supermärkte in der Nähe, zum Beispiel ein Lidl in ca. 0,5 km sowie weitere Einkaufsmöglichkeiten im Umfeld. Auch eine Drogerie wie Rossmann ist in ca. 1,5 km erreichbar. Das Restaurant Villa ist fußläufig erreichbar.
Praktisch für Fuhrpark und Einsätze
Wer mit Transporter oder mehreren Fahrzeugen unterwegs ist, profitiert von der guten Parkinfrastruktur: Ein Parkhaus liegt in ca. 0,2 km Entfernung, zusätzliche Parkmöglichkeiten finden sich in der näheren Umgebung. Für den laufenden Betrieb sind zudem Tankstellen in ca. 0,9 km erreichbar, was Wege zwischen Baustelle, Lager und Objekt spürbar vereinfacht.
Umfeld und Vermietbarkeit
Das Quartier ist etabliert und lebendig, mit Schulen und Kitas in der Nähe, was die Wohnlage auch für Familien attraktiv macht. Sport und Freizeitangebote sind ebenfalls gut vertreten. Insgesamt ergibt sich eine Lage, die im Alltag funktioniert, gut angebunden ist und durch die Nähe zu Einkauf, Gastronomie und Mobilität eine solide Basis für langfristige Vermietbarkeit bietet.
+++ Bitte haben Sie Verständnis, dass nur Anfragen mit VOLLSTÄNDIGEN persönlichen Angaben (komplette Anschrift oder Firmensitz, Rufnummer und E-Mail) beantworten werden! +++
Internet ist mit 175 MBits im Download und 40 MBits im Upload verfügbar.
Die Immobilie ist bis auf eine Wohnung im Erdgeschoss frei. Diese Wohnung wird von einem der Eigentümer bewohnt und beim Verkauf frei.
Ansprechpartner
Mobil: 004915772828028
fs@franksiegmannimmobilien.de
Energieausweis (Bedarfsausweis)
384,60 kWh / (m²*a) Endenergiebedarf
384,60 kWh / (m²*a) Endenergiebedarf
384,60 kWh / (m²*a) Endenergiebedarf
Weitere Informationen
| Wesentlicher Energieträger | Erdgas leicht |
| Energieausweis gültig bis | 2036-03-22 |
| Energieausweis Jahrgang | ab dem 1.5.2014 |
| Energieausweis Werteklasse | H |
| Energieausweis Baujahr | 1902 |
| Energieausweis Gebäudeart | Wohngebäude |
Ich bin damit einverstanden, dass mir Karten von Google angezeigt werden. Es gelten die Datenschutzbedingungen von Google (https://policies.google.com/privacy).
Ich bin einverstanden